- Agence immobilière à Nice
- Vente
- Alpes maritimes
- Nice
- Appartement 2 pièces lumineux à moderniser – Haut de la Libération, Nice
Référence : 2051
Calculette
Partager
Appartement 2 pièces lumineux à moderniser – Haut de la Libération, Nice
Description de l'offre
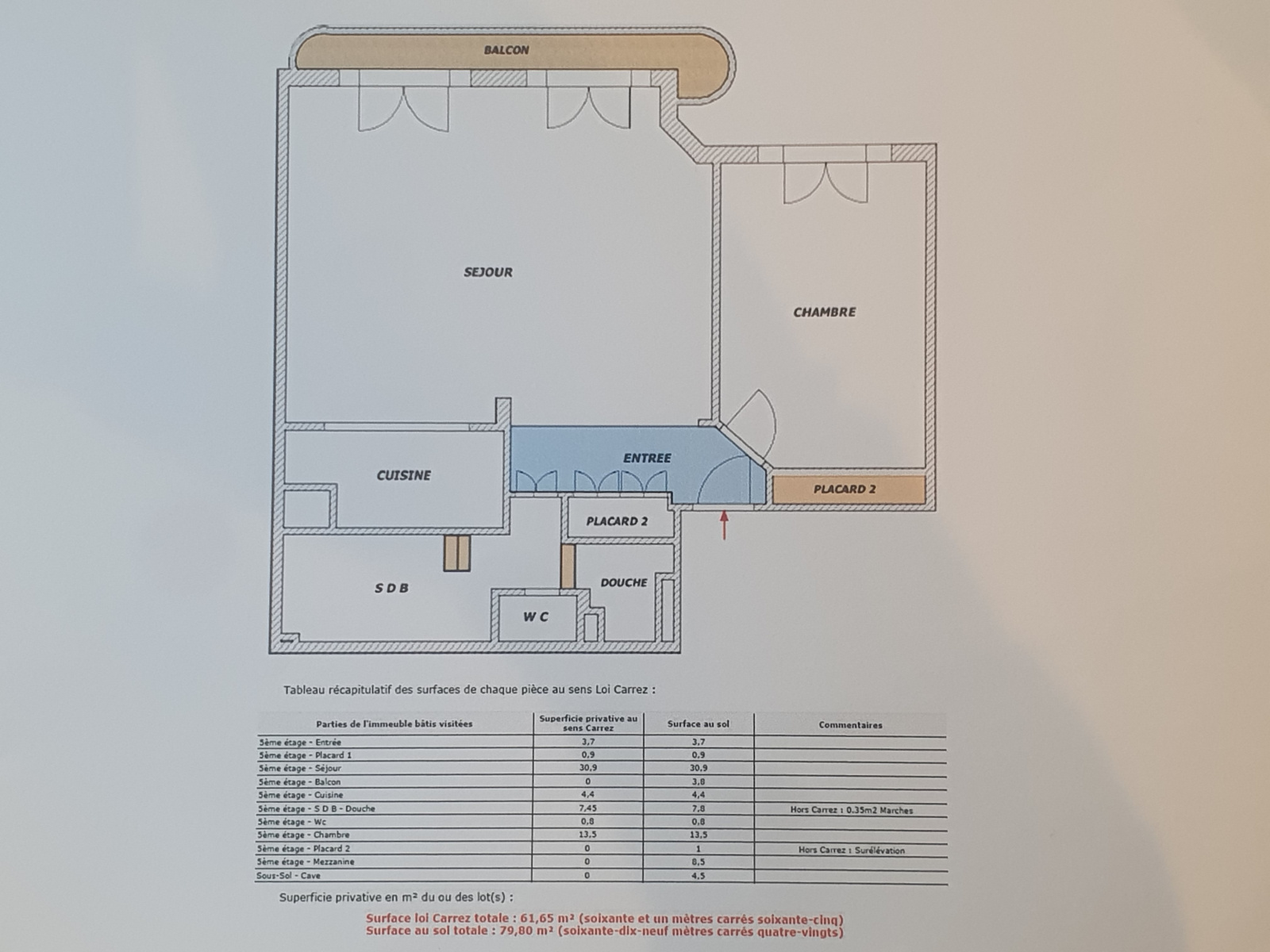
Situé dans le haut du quartier Libération à Nice, cet appartement 2 pièces de 62 m², bénéficie d’un environnement calme et agréable, tout en restant proche des commodités et du tramway.
Au 5ème étage sur 6 avec ascenseur d’un immeuble des années 1950–1960, le bien profite d’une exposition Sud-Ouest, d’une luminosité naturelle optimale et d’une vue dégagée sans vis-à-vis. Sa position en avant-dernier étage renforce la sensation de tranquillité.
L’appartement comprend une entrée avec placard, un séjour spacieux de 30 m², un coin cuisine, une chambre avec mezzanine, ainsi qu’une salle de bains équipée d’une baignoire et d’une douche avec WC. Un balcon filant de 3,80 m² complète l’ensemble. Une cave en sous-sol est également incluse.
Entièrement entretien régulier mais d’époque, l’appartement est à moderniser selon vos envies, offrant un fort potentiel de valorisation. L’isolation phonique pourra être améliorée pour un confort accru.
Le chauffage et l’eau chaude sont individuels au gaz, et les charges de copropriété sont faibles et maîtrisées.
À proximité immédiate des commerces, écoles, crèches et du tramway, cet appartement réunit tous les critères pour un mode de vie pratique et serein, idéal pour un premier achat ou un investissement locatif.
Biens soumis au statut de la copropriété.
Nombre de lots : 26 lots. Charges courantes annuelles : 1 280 euros/an.
Honoraires à la charge du vendeur.
Pas de procédure en cours à notre connaissance.
Estimation des coûts annuels d'énergie du logement : entre 1090 € et 1510 € (montant estimé des dépenses annuelles d'énergie pour un usage standard).
Les informations sur les risques auxquels ce bien est exposé sont disponibles sur le site Géorisques : georisques.gouv.fr
Les informations sur les risques auxquels ce bien est exposé sont disponibles sur le site Géorisques
Descriptif du bien
- Code postal : 06100
- Surface habitable (m²) : 62 m²
- Surface loi Carrez (m²) : 62 m²
- Nombre de chambre(s) : 1
- Nombre de pièces : 2
- Etage : 5
- Nombre de niveaux : 7
- Ascenseur : OUI
- Vue : DEGAGEE
- Nb de salle de bains : 1
- Nb de salle d'eau : 1
- Cuisine : KITCHENETTE
- Type de cuisine : SEMI-EQUIPEE
- Mode de chauffage : Gaz
- Type de chauffage : Chaudière
- Format de chauffage : Individuel
- Interphone : OUI
- Balcon : OUI
- Terrasse : NON
- Cave : OUI
- Surface cave (m²) : 4.5
- Exposition : SUD-OUEST
- Année de construction : 1960
- Quartier : LIBERATION
- Copropriété : OUI
- Lot n° : 24
- nombre de lots : 26
- Quote Part annuelle des charges : 1 288 €
- Prix de vente : 225 000 €
- Les honoraires d'agence seront intégralement à la charge du vendeur
- Charges : 107 €
- Taxe foncière annuelle : 1 033 €
Montant estimé des dépenses annuelles d'énergie pour un usage standard est compris entre 1 090 € et 1 510 € . Prix moyens des énergies indexés sur les années 2021, 2022 et 2023 (abonnements compris).
La ville de Nice (06100)
Ce bien vous intéresse ?
Partager l'offre
courtois AA GESTION
Nice (06000)
Les informations recueillies sur ce formulaire sont enregistrées dans un fichier informatisé par La Boite Immo agissant comme Sous-traitant du traitement pour la gestion de la clientèle/prospects de l'Agence / du Réseau qui reste Responsable du Traitement de vos Données personnelles.
La base légale du traitement repose sur l'intérêt légitime de l'Agence / du Réseau.
Elles sont conservées jusqu'à demande de suppression et sont destinées à l'Agence / au Réseau.
Conformément à la loi « informatique et libertés », vous disposez des droits d’accès, de rectification, d’effacement, d’opposition, de limitation et de portabilité de vos données. Vous pouvez retirer votre consentement à tout moment en contactant directement l’Agence / Le Réseau.
Consultez le site https://cnil.fr/fr pour plus d’informations sur vos droits.
Si vous estimez, après avoir contacté l'Agence / le Réseau, que vos droits « Informatique et Libertés » ne sont pas respectés, vous pouvez adresser une réclamation à la CNIL.
Nous vous informons de l’existence de la liste d'opposition au démarchage téléphonique « Bloctel », sur laquelle vous pouvez vous inscrire ici : https://www.bloctel.gouv.fr
Dans le cadre de la protection des Données personnelles, nous vous invitons à ne pas inscrire de Données sensibles dans le champ de saisie libre.
Ce site est protégé par reCAPTCHA, les Politiques de Confidentialité et les Conditions d'Utilisation de Google s'appliquent.
