- Agence immobilière à Nice
- Vente
- Alpes maritimes
- Nice
- Nice Promenade - Magnifique 3 pièces avec vue mer
Référence : 167
Partager
Nice Promenade - Magnifique 3 pièces avec vue mer
Description de l'offre
Cette location est soumise à l'assurance loyers impayés caution bancaire et Garant-me non acceptées.
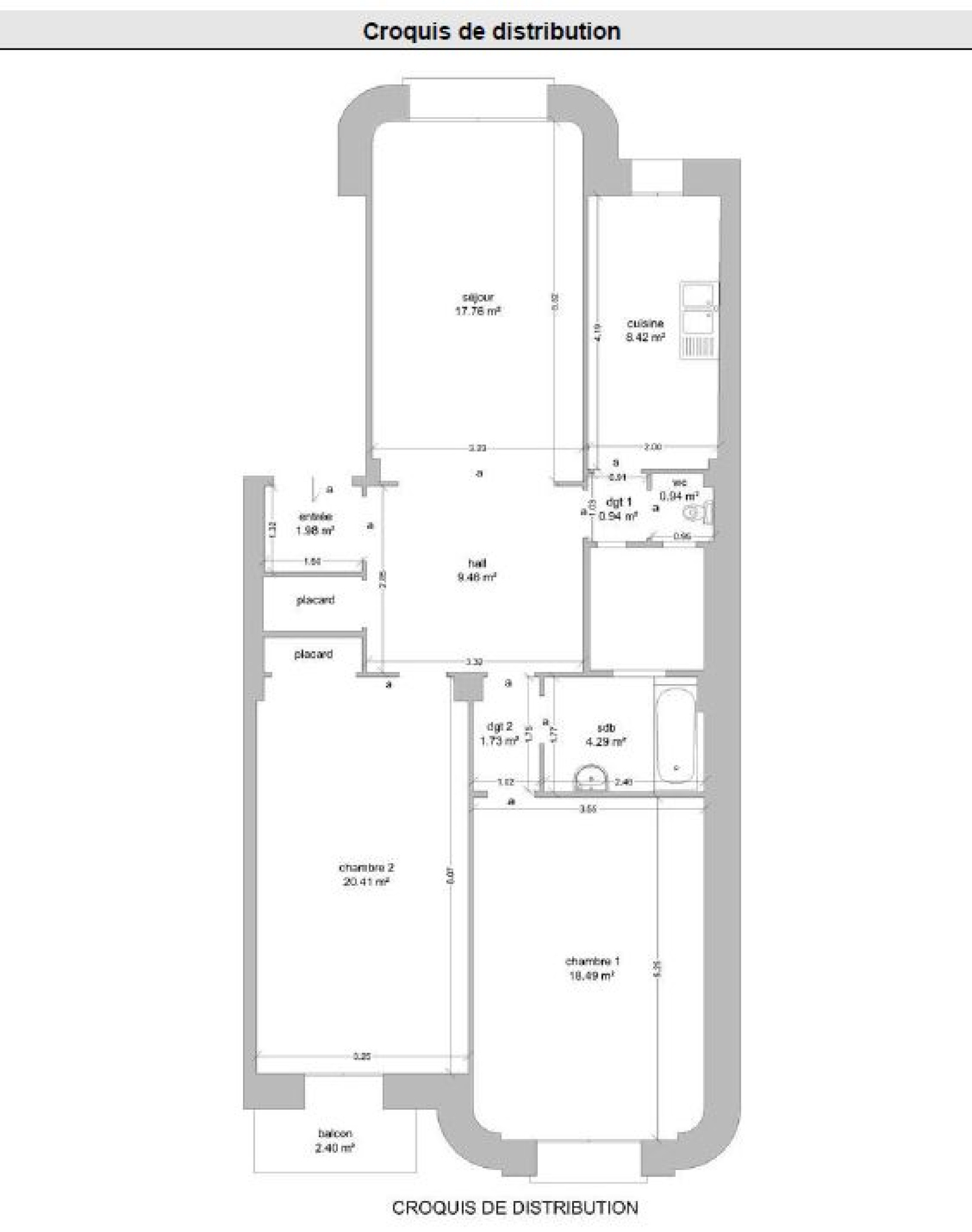
Nous vous proposons à la location un 3 pièces de 86m2 sur la Promenade des Anglais au niveau de l'hôpital Lenval.
Situé au 3e étage avec ascenseur d'un très bel immeuble bourgeois avec gardien, il est composé d'un hall d'entrée desservant toutes les pièces, d'une grande cuisine, de deux chambres, d'un salon, d'un balcon avec vue mer, d'une salle de bain et de wc séparés.
Une grande cave de 10m2 vient compléter cette location.
L'appartement est équipé de la climatisation, le chauffage est collectif.
Le locataire devra souscrire au contrat pour la fourniture de l'eau froide.
Les informations sur les risques auxquels ce bien est exposé sont disponibles sur le site Géorisques
Descriptif du bien
- Code postal : 06200
- Surface habitable (m²) : 86 m²
- Surface loi Boutin (m²) : 86 m²
- Nombre de chambre(s) : 2
- Nombre de pièces : 3
- Meublé : NON
- Etage : 3
- Nombre de niveaux : 1
- Ascenseur : OUI
- Vue : Mer
- Nb de salle de bains : 1
- Cuisine : SEPAREE
- Interphone : OUI
- Balcon : OUI
- Cave : OUI
- Surface cave (m²) : 10
- Exposition : NORD-SUD
- Copropriété : OUI
- Loyer CC* / mois : 2 000 €
- Honoraires TTC charge locataire : 1 124,12 €
- Dont état des lieux : 259,61 €
- Dépôt de garantie TTC : 1 800 €
- Charges locatives (forfaitaires mensuelles) : 200 €
La ville de Nice (06200)
Ce bien vous intéresse ?
Partager l'offre
courtois AA GESTION
Nice (06000)
Les informations recueillies sur ce formulaire sont enregistrées dans un fichier informatisé par La Boite Immo agissant comme Sous-traitant du traitement pour la gestion de la clientèle/prospects de l'Agence / du Réseau qui reste Responsable du Traitement de vos Données personnelles.
La base légale du traitement repose sur l'intérêt légitime de l'Agence / du Réseau.
Elles sont conservées jusqu'à demande de suppression et sont destinées à l'Agence / au Réseau.
Conformément à la loi « informatique et libertés », vous disposez des droits d’accès, de rectification, d’effacement, d’opposition, de limitation et de portabilité de vos données. Vous pouvez retirer votre consentement à tout moment en contactant directement l’Agence / Le Réseau.
Consultez le site https://cnil.fr/fr pour plus d’informations sur vos droits.
Si vous estimez, après avoir contacté l'Agence / le Réseau, que vos droits « Informatique et Libertés » ne sont pas respectés, vous pouvez adresser une réclamation à la CNIL.
Nous vous informons de l’existence de la liste d'opposition au démarchage téléphonique « Bloctel », sur laquelle vous pouvez vous inscrire ici : https://www.bloctel.gouv.fr
Dans le cadre de la protection des Données personnelles, nous vous invitons à ne pas inscrire de Données sensibles dans le champ de saisie libre.
Ce site est protégé par reCAPTCHA, les Politiques de Confidentialité et les Conditions d'Utilisation de Google s'appliquent.
